Nhu cầu xây dựng nhà ở nhanh chóng, tiết kiệm nhưng vẫn đảm bảo chất lượng và thẩm mỹ đang ngày càng gia tăng, đặc biệt tại các tỉnh thành có quỹ đất rộng như Bình Phước. Nắm bắt xu hướng này, anh Huy Bình Phước đã lựa chọn mô hình nhà module bê tông đúc nguyên khối do ABL thi công để kiến tạo tổ ấm trên diện tích 1000m2. Với 4 khung V05-B được lắp ghép tối ưu, công trình mang đến giải pháp sống hiện đại, bền vững. Cùng mongkimcuong.com tìm hiểu chi tiết dự án nhà anh Huy.
Giới thiệu chung về dự án nhà anh Huy Bình Phước
Dự án nhà anh Huy là công trình nhà ở dân dụng được triển khai trên khu đất rộng 1000m2 tại tỉnh Bình Phước. Anh Huy mong muốn xây dựng một ngôi nhà kiên cố, bền vững, nhưng vẫn đảm bảo tiến độ thi công nhanh chóng và kiểm soát chi phí hiệu quả.
- Tổng quan dự án: nhà ở dân dụng tại Bình Phước
- Chủ đầu tư: anh Huy
- Diện tích đất: 1000m2
- Quy mô: 4 khung V05-B phân chia đầy đủ không gian chức năng
- Đơn vị thi công: Công ty ABL


Các không gian và công năng của dự án nhà anh Huy Bình Phước
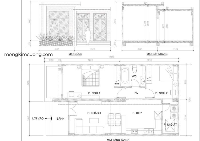
Dự án nhà anh Huy tại Bình Phước được triển khai theo mô hình nhà module bê tông đúc lắp ghép với 4 khung V05-B, mỗi module là một khối nhà riêng biệt nhưng được thiết kế đồng bộ, liên kết linh hoạt theo bố cục tổng thể. Việc phân chia công năng hợp lý giúp tối ưu hóa không gian sử dụng trên khu đất rộng 1000m².

- Module thứ nhất được bố trí làm phòng khách chính, là trung tâm sinh hoạt chung của gia đình. Với thiết kế mở, module này kết nối trực tiếp với module thứ hai, tạo nên một tổng thể liền mạch. Nhờ hệ cửa kính mặt tiền rộng, phòng khách luôn tràn ngập ánh sáng tự nhiên, thoáng đãng và hiện đại. Đây là nơi đón tiếp khách, sinh hoạt, thư giãn – thể hiện rõ tinh thần tối giản nhưng tiện nghi mà anh Huy hướng tới.


- Module thứ hai đóng vai trò là khu bếp và phòng giặt, được bố trí gọn gàng, hợp lý. Khu bếp sử dụng hệ tủ âm tường và bàn thao tác nhỏ gọn, giúp việc nấu nướng trở nên thuận tiện. Góc giặt phơi được tách biệt, đảm bảo vệ sinh và không ảnh hưởng đến các không gian khác. Phòng khách và bếp – hai module này kết nối liền nhau tạo nên khu vực ăn uống chung ấm cúng, thuận tiện trong sinh hoạt hàng ngày.




- Module thứ ba và thứ tư được sử dụng làm hai phòng ngủ riêng biệt, mang lại sự riêng tư cho từng thành viên trong gia đình. Mỗi phòng đều có cửa sổ rộng, mở ra hướng sân vườn giúp thông gió và lấy sáng tự nhiên. Không gian trong phòng được thiết kế tối giản nhưng đầy đủ tiện nghi, phù hợp với nhu cầu nghỉ ngơi và thư giãn.





Cách bố trí này không chỉ tối ưu công năng sử dụng mà còn đảm bảo tính thẩm mỹ và sự thuận tiện trong sinh hoạt hàng ngày, đặc biệt phù hợp với nhu cầu sống gần gũi thiên nhiên.
Thông số và ưu điểm của module V05-B
Module V05-B là sản phẩm tiêu chuẩn do ABL thiết kế và sản xuất, ứng dụng công nghệ đúc bê tông mác cao kết hợp cốt thép chịu lực. Đây là loại module lắp ghép hoàn chỉnh tại xưởng, sau đó vận chuyển nguyên khối đến công trình để lắp đặt.
- Kích thước tiêu chuẩn: Rộng 3.5m, cao 3.0m, dài 5.8m
- Trọng lượng: Khoảng 14 tấn
- Cấu tạo: Bê tông cốt thép nguyên khối, được xử lý chống thấm và cách nhiệt ngay từ khâu sản xuất
Mỗi khung module V05-B có kích thước rộng 3.5m, dài 5.8m, mang lại diện tích sử dụng khoảng 20.3m2. Với 4 khung được lắp ghép trong dự án nhà anh Huy, tổng diện tích sàn đạt khoảng 81.2m2. Đây là con số lý tưởng cho một ngôi nhà 1 tầng có đầy đủ công năng: phòng khách, bếp, hai phòng ngủ, vệ sinh, kho và khu vực hiên nhà. Việc sử dụng module giúp tối ưu hóa không gian, đồng thời tạo điều kiện bố trí khu sân vườn rộng thoáng – mang lại trải nghiệm sống tiện nghi, gần gũi thiên nhiên.

Ưu điểm nổi bật của module V05-B là độ bền cao, khả năng chống nứt, chống thấm và cách nhiệt vượt trội so với nhà xây truyền thống. Với kích thước hợp lý, module có thể lắp ghép linh hoạt để tạo ra nhiều cấu trúc nhà khác nhau (chữ I, L, U…), phù hợp với nhiều loại địa hình và nhu cầu sử dụng. Ngoài ra, việc sản xuất đồng bộ tại nhà máy giúp rút ngắn thời gian thi công tại công trình, kiểm soát chất lượng dễ dàng, tiết kiệm nhân công và chi phí phát sinh. Đây là giải pháp lý tưởng cho các công trình cần thi công nhanh, chất lượng ổn định và kiến trúc hiện đại.

Kết luận
Dự án nhà anh Huy Bình Phước là minh chứng rõ ràng cho hiệu quả và tiềm năng của mô hình nhà module bê tông đúc nguyên khối trong xây dựng nhà ở dân dụng hiện đại. Với thiết kế tối ưu, thi công nhanh chóng, vật liệu bền chắc và khả năng mở rộng linh hoạt, công trình không chỉ đáp ứng đầy đủ nhu cầu sinh hoạt mà còn mang lại giá trị thẩm mỹ lâu dài.
Nếu bạn đang tìm kiếm giải pháp nhà ở tiện nghi, bền vững với chi phí hợp lý, ABL – đơn vị tiên phong trong lĩnh vực nhà module – chính là đối tác đáng tin cậy. Quý khách có thể tham khảo bảng giá nhà module ABL mới nhất tại đây để dễ dàng lựa chọn phương án phù hợp với ngân sách và nhu cầu sử dụng.
- Các mẫu nhà vườn 2 tầng đơn giản, tiết kiệm chi phí cho gia chủ
- Kinh nghiệm thiết kế nhà bê tông đúc từ thực tiễn thi công chuyên nghiệp
- Homstay hiện đại tại Nha Trang – nhà module bê tông đúc sẵn của anh Tiến
- 90% gia chủ mắc sai lầm chọn đơn vị thi công nhà bê tông đúc. Bạn có nằm trong số đó?
- Khám phá nhà chị Linh Bạc Liêu – 4 module v05b cho tổ ấm hiện đại, dễ thi công
















