Bản vẽ thiết kế phòng trọ 15m2 luôn là chủ đề được nhiều người quan tâm, đặc biệt là chủ nhà trọ và các bạn trẻ tìm kiếm không gian sống tiện nghi trong diện tích nhỏ. Với kinh nghiệm thiết kế và thi công nhà module bê tông đúc, ABL mang đến những giải pháp tối ưu giúp tận dụng từng mét vuông hiệu quả mà vẫn đảm bảo tính thẩm mỹ. Cùng mongkimcuong.com khám phá những mẫu thiết kế ấn tượng trong bài viết dưới đây.
Những yếu tố quan trọng khi thiết kế phòng trọ 15m2
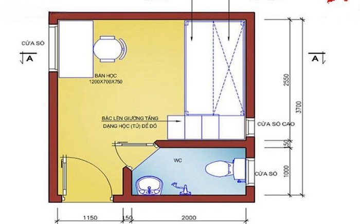
Bản vẽ thiết kế phòng trọ 15m2 đẹp và tiện nghi đòi hỏi sự sắp xếp khoa học để tối ưu không gian.
Tối ưu diện tích sử dụng
Trước tiên, việc tối ưu diện tích sử dụng là yếu tố quan trọng hàng đầu. Nội thất nên được bố trí hợp lý, tận dụng tối đa các góc phòng, ưu tiên sử dụng kệ treo tường, giường gấp hoặc bàn làm việc nhỏ gọn để không gian luôn gọn gàng và rộng rãi hơn.

Ánh sáng và thông gió
Bên cạnh đó, ánh sáng và thông gió cũng đóng vai trò quyết định đến sự thoáng đãng của căn phòng. Việc tận dụng ánh sáng tự nhiên qua cửa sổ lớn không chỉ giúp tiết kiệm điện mà còn tạo cảm giác rộng mở. Hệ thống thông gió hợp lý cũng giúp không khí lưu thông tốt hơn, hạn chế ẩm mốc và mang lại không gian sống trong lành.
Màu sắc và phong cách
Một yếu tố quan trọng khác là màu sắc và phong cách thiết kế. Những gam màu sáng như trắng, kem, pastel hoặc xám nhạt có tác dụng mở rộng không gian về mặt thị giác, giúp phòng trông rộng và sạch sẽ hơn.
Chọn nội thất thông minh
Cuối cùng, chọn nội thất thông minh là giải pháp tối ưu cho bản vẽ thiết kế phòng trọ 15m2. Các món đồ như giường tầng, bàn gấp, tủ âm tường không chỉ tiết kiệm diện tích mà còn giúp căn phòng trở nên hiện đại và tiện nghi hơn. Với cách bố trí hợp lý, dù chỉ 15m2, bạn vẫn có thể sở hữu một không gian sống đầy đủ tiện ích và thoải mái.

Gợi ý các mẫu bản vẽ thiết kế phòng trọ 15m2 đẹp hiệu quả
Với diện tích chỉ 15m2, việc thiết kế phòng trọ sao cho vừa đẹp, vừa tiện nghi là điều không hề đơn giản. Một bản vẽ thiết kế hợp lý sẽ giúp tối ưu không gian, tạo cảm giác rộng rãi và thoải mái khi sinh hoạt.
Bản vẽ phòng trọ 15m2 có gác
Phòng trọ có gác là giải pháp tuyệt vời để tận dụng không gian theo chiều dọc. Gác lửng có thể dùng làm khu vực ngủ, giúp tách biệt hoàn toàn với không gian bên dưới, nơi bố trí bàn làm việc, bếp và khu vực sinh hoạt chung. Thiết kế này không chỉ tăng diện tích sử dụng mà còn giúp căn phòng gọn gàng, thoáng đãng hơn.

Phòng trọ 15m2 không có gác
Với bản vẽ thiết kế phòng trọ 15m2 không có gác, việc bố trí nội thất hợp lý là yếu tố quan trọng. Giường ngủ nên được đặt sát góc tường để tiết kiệm diện tích, bàn làm việc có thể kết hợp với kệ sách treo tường để tận dụng không gian trống. Ngoài ra, sử dụng nội thất thông minh như giường gấp, bàn ăn có thể thu gọn giúp căn phòng luôn ngăn nắp mà vẫn đầy đủ tiện nghi.

Bản vẽ phòng trọ 15m2 hiện đại
Thiết kế phòng trọ theo phong cách hiện đại thường sử dụng gam màu sáng như trắng, be hoặc pastel nhằm tạo cảm giác rộng hơn. Nội thất được bố trí tối giản, ưu tiên các vật dụng cần thiết như giường, bàn làm việc và kệ treo tường. Đặc biệt, tận dụng ánh sáng tự nhiên từ cửa sổ giúp căn phòng thêm thông thoáng và tràn đầy sức sống.

Bản vẽ phòng trọ 15m2 phong cách Nhật Bản
Bạn có thể lựa chọn mẫu phòng trọ 15m2 phong cách Nhật Bản với sự tối giản mà ấm cúng. Nội thất chủ yếu là gỗ sáng màu, giường thấp, có thể gấp gọn để tiết kiệm không gian. Các kệ tủ âm tường giúp tăng diện tích lưu trữ, đồng thời căn phòng luôn thoáng đãng và sạch sẽ. Thiết kế này tạo nên không gian sống hài hòa, gần gũi với thiên nhiên và mang lại cảm giác thư thái sau một ngày dài.

Lưu ý khi lựa chọn bản vẽ thiết kế phòng trọ 15m2
Chọn thiết kế phù hợp nhu cầu sử dụng
Khi lựa chọn bản vẽ thiết kế phòng trọ 15m2, điều quan trọng nhất là phải phù hợp với nhu cầu sử dụng. Nếu ở một mình, bạn có thể chọn thiết kế đơn giản, tối ưu không gian làm việc và nghỉ ngơi. Nếu ở hai người, cần có bố cục hợp lý để đảm bảo sự riêng tư. Ngoài ra, hãy cân nhắc xem có cần khu vực bếp nấu hay không để sắp xếp không gian hiệu quả.

Tối ưu công năng sử dụng
Bên cạnh đó, bản vẽ cần tối ưu công năng sử dụng và đảm bảo yếu tố phong thủy. Việc bố trí giường ngủ, bàn làm việc, cửa sổ hợp lý không chỉ giúp căn phòng thoáng đãng mà còn mang lại cảm giác thoải mái, năng lượng tích cực.
Cân nhắc ngân sách thi công
Cuối cùng, đừng quên cân nhắc ngân sách thi công. Việc chọn nội thất thông minh, vật liệu phù hợp sẽ giúp tiết kiệm chi phí mà vẫn đảm bảo chất lượng và tính thẩm mỹ. Một bản vẽ thiết kế tốt không chỉ giúp tối ưu diện tích mà còn tạo nên không gian sống tiện nghi, thoải mái trong thời gian dài.
Việc lựa chọn bản vẽ thiết kế phòng trọ 15m2 phù hợp không chỉ tối ưu công năng sử dụng mà còn đảm bảo sự thoáng đãng, tiết kiệm diện tích hiệu quả. Hy vọng những gợi ý trong bài viết sẽ giúp bạn tìm được giải pháp thiết kế phù hợp với nhu cầu của mình.

Để xây dựng phòng trọ 15m2 đẹp, lý tưởng, các chuyên gia ABL sẵn sàng giúp bạn. Chúng tôi mang đến giải pháp thi công phòng trọ module bê tông đúc sẵn bền bỉ. Tham khảo thêm bảng giá module bê tông ABL và liên hệ để được tư vấn hợp lý.
CÔNG TY TNHH ABL-VẠN PHÚC
Đ/c: Số 16, đường Phố Lụa, quận Hà Đông – TP. Hà Nội
Hotline: 084.791.2023
- Tìm hiểu thêm về móng kim cương – Diamond Pier
- Thông số kỹ thuật nhà bê tông nguyên khối như thế nào? Các thiết kế ấn tượng?
- Dự án nhà trọ anh Quốc Duy – Bình Thạnh với giải pháp nhà bê tông đúc sẵn
- Xu hướng và ứng dụng của nhà bê tông đúc sẵn lắp ghép
- Biệt thự sân vườn chị Mai – không gian sống hoàn hảo giữa Đà Lạt
















